To Let £1,100pcm (Fees Apply)
South Street, Bishop's Stortford

Description


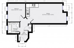
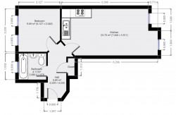
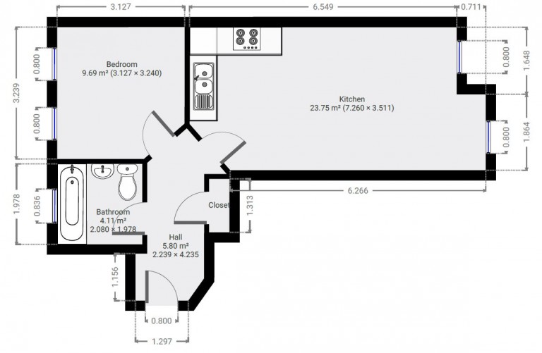
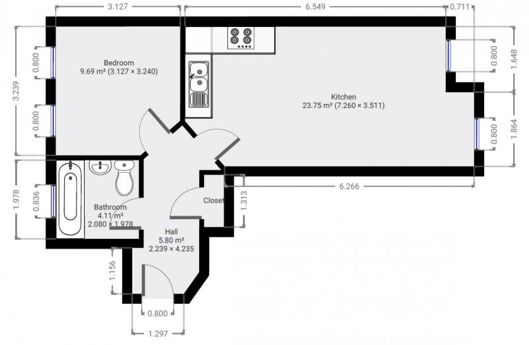
We are pleased to introduce this first floor one-bedroom modern apartment situated in the heart of Bishops Stortford's Town Centre and located a convenient two-minute walk away from the Mainline Rail Station, offering direct services into London Liverpool Street and Stansted Airport making this an ideal choice for city workers and airport staff alike.

This property comes with the offering of one double bedroom, as well as a light and airy naturally lit open-plan living area inclusive of a fitted kitchen with integrated appliances. This apartment also benefits from a family sized bathroom with both bath and shower facilities as well as a heated towel rail fixed to the wall.

Riverside Walk is situated just a stones' throw away from various local amenities such as the Nuffield Health Gym & Spa complex, the locally renowned and vintage styled South Street Pantry tearoom as well as the M&S Foodhall to name but a few.

If you are in search of fine dining then look no further than the Skew Restaurant and Grill located less than a minute away from the property itself, home to its own champagne and oyster bar. You certainly won't be short of things to do in and around Bishops Stortford.

Call us today to schedule a viewing and for more information!

For further details on this property please give us a call
01279 654646

ARRANGE A VIEWING

Book a viewing or enquire about this property

Simply fill out the form below or alternatively call us on 01279 654646

* Mandatory fields