Let Agreed £1,200pcm (Fees Apply)
Riverside Wharf, Bishop's Stortford

Description


PM Estates are pleased to introduce this modern apartment to the rental market within the popular Riverside Wharf Development of Bishops Stortford.

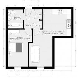
This first floor apartment is well presented throughout with a large open plan living room and kitchen area, complete with shaker styled wall and base units, inclusive of AEG Electrolux branded integrated appliances, such as a full size dishwasher, oven with extractor fan and hob, as well as a fridge freezer. The lounge area has floor to ceiling glass patio doors, providing access onto the communal courtyard, which is a private external area for residents to use.

This property has a large double sized bedroom complete with fitted carpet and neutral coloured walls, along with a family sized bathroom complete with contrasting modern wall tiles, and a fitted suite including bath and shower facilities.

Within the entrance hallway of this apartment, is a storage cupboard housing a washer dryer, fitted for convenience.

The ever-popular Riverside Wharf Development is known for its quality of finish with its well-maintained communal garden areas, as well as central location. The development is a short walk away from the mainline train station, which is only 0.2miles from the development. The services at the train station offer direct routes to London Liverpool Street, Stansted Airport and Cambridge City Centre.

This property also has one allocated parking space which is in a secure gated car park, within the development.

Call us today to avoid book your viewing appointment

For further details on this property please give us a call
01279 654646

ARRANGE A VIEWING

Book a viewing or enquire about this property

Simply fill out the form below or alternatively call us on 01279 654646

* Mandatory fields