Let Agreed £1,150pcm (Fees Apply)
Red Lion Court, Bishop's Stortford

Description


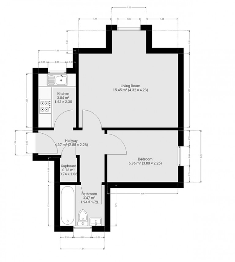
PM Estates are proud to present this newly refurbished one-bedroom ground floor apartment within the popular Red Lion Court Development, situated with the town centre of Bishops Stortford.

Finished in a modern style, the property benefits from an upgraded kitchen with appliances, a recently updated bathroom with bath and shower facilities, along with new decoration throughout. Offered in immaculate condition, this apartment provides stylish, low-maintenance living, perfect for professionals seeking convenience and quality in a prime town centre location.

The Red Lion Court Development is within walking distance to the mainline rail station which offers direct services to London Liverpool Street, Stansted Airport and Cambridge City Centre. This property also benefits from one allocated parking bay within the development.

The development is also just a stone's throw away from many of the town's amenities inclusive of the Nuffield Health Gym Complex, and Sainsbury's superstore, along with many high street named brands.

Call us today to book your viewing appointment on 01279 654646

For further details on this property please give us a call
01279 654646

ARRANGE A VIEWING

Book a viewing or enquire about this property

Simply fill out the form below or alternatively call us on 01279 654646

* Mandatory fields