For Sale £195,000
Cavell Drive, Bishop's Stortford

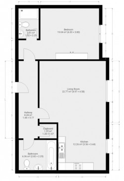
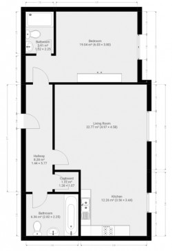
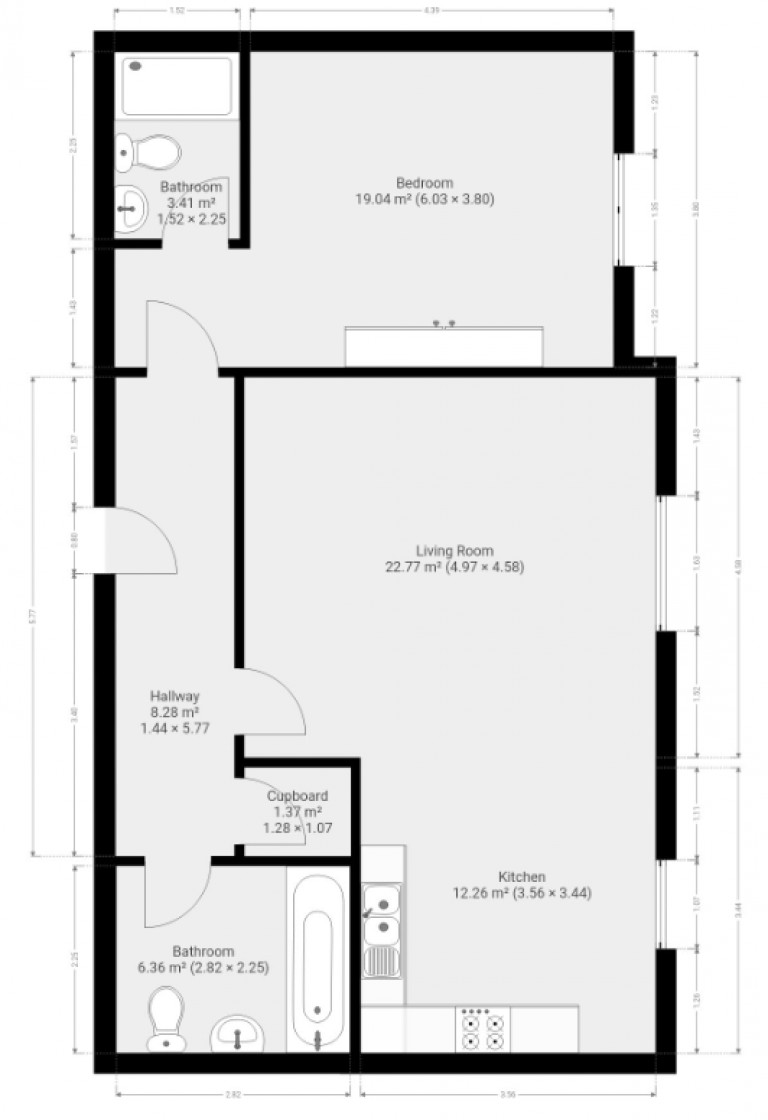
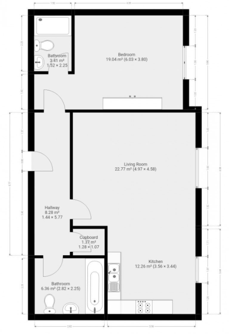
Description


PM Estates are pleased to introduce this one bedroom first floor apartment in the ever-popular Cavell Drive Development within walking distance to the Town Centre of Bishops Stortford, to the sales market.

This apartment has the added benefit of an open plan living area, with an adjoining fully fitted kitchen with modern wall and base units finished in a wooden oak effect with the inclusive of integrated appliances such as a fridge freezer, integrated oven and hob, extractor fan and washing machine.

There is a large double sized bedroom location within this property with the inclusive of a fitted wardrobe with full length mirror front sliding doors. There is the added benefit of an en-suite bathroom adjacent to the bedroom, including an additional family sized tiled bathroom along the entrance hallway.

The modern style family sized bathroom comes complete with the addition of a wall-mounted heated chrome towel rail, panel enclosed bath with showering facilities and chrome mixer taps and is finished with a pedestal wash hand basin.

This unique property is located within the town centre of the ever-changing historic market town of Bishops Stortford, that is now known for its continental and cosmopolitan atmosphere.

The mainline rail station is a ten-minute walk away from the development, which offers direct services to London Liverpool Street, Cambridge, and Stansted Airport, and within close proximity to the Herts and Essex Community Hospital.

Service Charge is £133 per month, and ground rent is £200 per annum. For investors, this will prove to be a good investment with a yield of 7.38%, based on the current tenant in situ paying £1,200 per calendar month.

Call us today to avoid disappointment and book your viewing appointment!

For further details on this property please give us a call
01279 654646

ARRANGE A VIEWING

Book a viewing or enquire about this property

Simply fill out the form below or alternatively call us on 01279 654646

* Mandatory fields