Let Agreed £1,300pcm (Fees Apply)
St Stephens Court, Stansted

Description


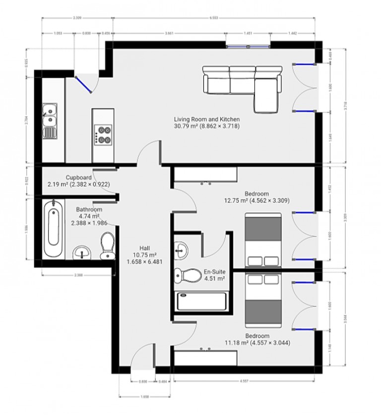
PM Estates are pleased to introduce this spacious two-bedroom ground floor apartment, situated within the prestigious St Stephens Court development in the historic village of Stansted Mountfitchet. This home is available now on the rental market with viewings available upon request.

Immaculately presented throughout, the apartment is inclusive of generously sized open plan living/ kitchen area which benefits from a sleek modern interior throughout. The kitchen area is home to integrated appliances and sleek speckle effect worktops. The reception area here also benefits from direct access to the properties exterior which only serves to further amplify the open, light and airy ambience which flows throughout the room.

Both bedrooms on offer here are double in size with the master leading onto its very own private en-suite bathroom. The apartment also benefits from a large, tiled family sized bathroom with both bath and shower facilities within.

The St Stephens Court development truly has stood the test of time and has proven to only increase in its popularity among both tenants and owner occupiers alike whereby the development is just a stone's throw away from various local amenities inclusive of the widely renowned Linden House Guest House as well as having a Tesco Express on Silver Street itself. St Stephens Court is also just 1.6 miles from the Forrest Hall School. The mainline rail station is also just an 8-minute walk away offering direct services to London Liverpool Street and Stansted Airport making this stunning apartment a perfect choice for families and single professionals alike.

For further details on this property please give us a call
01279 654646

ARRANGE A VIEWING

Book a viewing or enquire about this property

Simply fill out the form below or alternatively call us on 01279 654646

* Mandatory fields